2025.11.05
RENT
中古住宅
里
便利な立地で叶える、コンパクトで快適な住まい
- 家賃:
- 3万円/月
- 間取り:
- 3SDK
今回ご紹介するのは里地区にある、3SDKの賃貸住宅です。里港から徒歩圏内で、利便性の高い立地です。尚、こちらの物件は、美容室と飲食店と併設したつくりですが、入口は独立しており、プライバシーや独立性は確保されています。


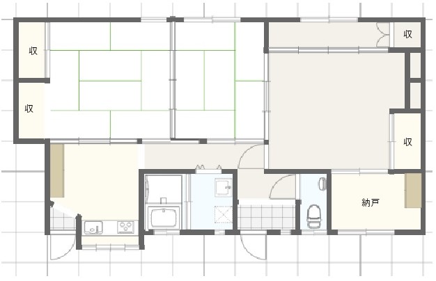
6畳と8畳の和室に8畳の洋室+納戸のコンパクトな間取りです。



洋室はふすま以外にも片開きドアからも出入りできるので、個室として利用する事が出来ます。
8畳と6畳の和室もふすま続きですが、それぞれに出入り口があるのでふすまを閉めて、個室として利用することも出来ます。



洋室の奥には3畳程の納戸があり、季節用品や趣味の道具の収納場所や書斎としての利用も出来ます。縁側にも収納スペースがあります。



コンパクトながらも洗面脱衣スペースもあります。浴室、洗面室、トイレのそれぞれに窓があり自然換気ができ、明るい空間となっています。



キッチンの出窓部分はちょっとした道具置きにも活用できます。勝手口が付いているため、ゴミ出しや外への出入りもスムーズに行えます。



美容室と飲食店と併設された物件ではありますが、各店舗の入口は独立しており、プライバシーや独立性が確保されています。



同じ敷地内にもう一件建物があり、建物自体は別々の構造となっておりますが、敷地への入口は共通となっております。




給湯設備交換の為、入居時期は2026年1月からとなっています。お気軽にお問合せ下さい。
- 物件種目
- 賃貸物件
- 所在地
- 薩摩川内市里町
- 賃料
- 3万円/月
- 間取り
- 3SDK
- 駐車場
- 近隣(要確認)
- 入居条件
- 2026年1月頃
- 校区
- 幼稚園:里幼稚園
小学校:里小学校
中学校:里中学校 - ライフライン
- 水道:上水道
トイレ:様式/水洗
下水:下水道
電気:引き込み済
風呂:要確認
ガス:プロパン - 里港まで 約300m
里診療所まで 約150m
里郵便局まで 約300m