2025.11.05
SALE
RENT
中古住宅
里
【成約済】ゆとりのある暮らしを叶える、平屋の賃貸物件
- 家賃:
- ***
- 価格:
- ***
- 所在地:
- 薩摩川内市里町
- 間取り:
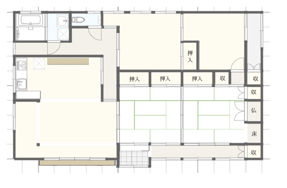
- 3SLDK
今回ご紹介する物件は里地区にある戸建の賃貸物件です。里港から徒歩圏内で、利便性の高い立地です。
家族みんながゆったりと暮らせる3SLDKの間取りです。


手入れの行き届いた美しい庭があります。






和室のある落ち着いた空間に加え、収納スペースも充実しています。
畳が心地よい続き間は、客間や家族の団らんスペースとしても最適です。



南向きで日当たりのよい縁側ではお洗濯物を干したり、お昼寝も気持ちよくできそうです。



広々としたLDKは、家族やゲストとゆったりと過ごせるだけでなく、家具やインテリアの配置も自由度が高くなります。視覚的にも圧迫感がなく、心地よい空間を作り出せます。



南向きの窓からは一日中たっぷりと自然光が差し込み、室内が明るく開放的な空間です。



L型キッチンは、コーナー部分を有効活用できるため広い作業台を確保でき調理、洗い物、盛り付けなどの作業をスムーズに行えます。シンクも広く、ガスコンロも三口なので料理効率も上がります!



リビングの奥には洋室の個室、納戸、トイレ、浴室があります。
洗面脱衣場もあり、トイレ内には手洗い設備もあります。






リビングの奥にある洋室は仕事や勉強、趣味に集中したいときに、静かで落ち着いた空間を確保できます。隣の納戸への出入りが出来ますが、隣は和室からの出入りも出来るため入口を分けることで個室としてプライベートが守られます。



納戸からは和室への出入り口と裏玄関があります。裏玄関から荷物の出し入れもでき、プライベート空間が保てる個室としての利用も可能です。



家具や家電がそのまま残っておりますので、ご使用を希望される場合はご相談ください。
広々とした間取りの戸建で、快適な暮らしを始めてみませんか。自然光がたっぷり差し込み、ゆったりとした空間でご家族やご友人と素敵な時間をお過ごしいただけます。
理想の住まいを実現するチャンスですので、お気軽にお問い合わせください。
- 物件種目
- 賃貸/売買物件
- 所在地
- 薩摩川内市里町
- 間取り
- 3SLDK
- 駐車場
- 近隣(要確認)
- 入居条件
- 応相談(11月中の入居希望の方はご相談ください)
- 校区
- 幼稚園:里幼稚園
小学校:里小学校
中学校:里中学校 - ライフライン
- 水道:上水道
トイレ:様式/水洗
下水:下水道
電気:引き込み済
風呂:ガス
ガス:プロパンガス - 里港まで 約300m
里診療所まで 約150m
里郵便局まで 約300m